|
Каталог Балтэнергомаш паспорт продукции |
|
Каталог Балтэнергомаш методика выбора градирен |
|
Каталог Балтэнергомаш назначение градирни |
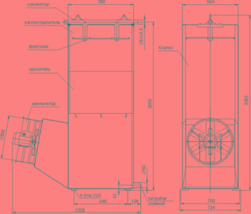
Компания «Балтэнергомаш» специализируется на выпуске компактных вентиляторных градирен серии ГРАД с 2000 года. Для изготовления корпуса градирни используется нержавеющая сталь, форсунки, ороситель и каплеотделитель производится из высококачественных пластмасс, что позволяет использовать ее в разных климатических зонах в течение всего года. Вентилятор располагается в нижней части агрегата.

Каталог градирен
Градирни (кроме ГРАД-8) составляются из блока и бака с вентилятором. Снизу находится ороситель, на нем коллектор с форсунками, а сверху каплеотделитель. Вентилятор нагнетает воздух, навстречу ему через ороситель в бак стекает вода, разбрызгиваемая цельнофакельными форсунками. По градирне циркулирует вода, примерно 1% этой воды испаряется и охлаждается. Каплеотделитель улавливает капельную влагу до 99,9%, расходуя номинальный объем воды.
ГРАД-8

|
ТЕХНИЧЕСКИЕ ХАРАКТЕРИСТИКИ |
|
|
Количество охлаждаемой, м3/час |
8 |
|
Площадь поверхности оросителя, м2 |
65 |
|
Расчетный тепловой поток при разности температур по воде Δt=5оС, кВт |
46 |
|
Диапазон регулирования производительности, % |
40-100 |
|
Площадь орошения, м2 |
0,5 |
|
Количество форсунок, шт. |
2 |
|
Количество вентиляторов, шт. |
1 |
|
Тип вентилятора |
06-300 |
|
Диаметр рабочего колеса, мм |
500 |
|
Частота вращения колеса вентилятора, об/мин |
1500 |
|
Установленная мощность электродвигателя, кВт |
0,37 |
|
Уровень звука на расстоянии 1 м, дБА |
71 |
|
Напряжение/частота сети, В/Гц |
380/50 |
|
Масса, кг |
125 |
ГРАД-12М

|
ТЕХНИЧЕСКИЕ ХАРАКТЕРИСТИКИ |
|
|
Количество охлаждаемой, м3/час |
12 |
|
Площадь поверхности оросителя, м2 |
88 |
|
Расчетный тепловой поток при разности температур по воде Δt=5оС, кВт |
70 |
|
Диапазон регулирования производительности, % |
45-100 |
|
Площадь орошения, м2 |
0,95 |
|
Количество форсунок, шт. |
2 |
|
Количество вентиляторов, шт. |
1 |
|
Тип вентилятора |
06-300 |
|
Диаметр рабочего колеса, мм |
630 |
|
Частота вращения колеса вентилятора, об/мин |
1000 |
|
Установленная мощность электродвигателя, кВт |
0,75 |
|
Уровень звука на расстоянии 1 м, дБА |
68 |
|
Напряжение/частота сети, В/Гц |
380/50 |
|
Масса, кг |
231 |
ГРАД-16

|
ТЕХНИЧЕСКИЕ ХАРАКТЕРИСТИКИ |
|
|
Количество охлаждаемой, м3/час |
16 |
|
Площадь поверхности оросителя, м2 |
88 |
|
Расчетный тепловой поток при разности температур по воде Δt=5оС, кВт |
95 |
|
Диапазон регулирования производительности, % |
40-100 |
|
Площадь орошения, м2 |
0,95 |
|
Количество форсунок, шт. |
3 |
|
Количество вентиляторов, шт. |
1 |
|
Тип вентилятора |
06-300 |
|
Диаметр рабочего колеса, мм |
630 |
|
Частота вращения колеса вентилятора, об/мин |
1500 |
|
Установленная мощность электродвигателя, кВт |
1,1 |
|
Уровень звука на расстоянии 1 м, дБА |
79 |
|
Напряжение/частота сети, В/Гц |
380/50 |
|
Масса, кг |
231 |
ГРАД-20М

|
ТЕХНИЧЕСКИЕ ХАРАКТЕРИСТИКИ |
|
|
Количество охлаждаемой, м3/час |
20 |
|
Площадь поверхности оросителя, м2 |
175 |
|
Расчетный тепловой поток при разности температур по воде Δt=5оС, кВт |
120 |
|
Диапазон регулирования производительности, % |
45-100 |
|
Площадь орошения, м2 |
0,95 |
|
Количество форсунок, шт. |
4 |
|
Количество вентиляторов, шт. |
1 |
|
Тип вентилятора |
06-300 |
|
Диаметр рабочего колеса, мм |
630 |
|
Частота вращения колеса вентилятора, об/мин |
1000 |
|
Установленная мощность электродвигателя, кВт |
0,75 |
|
Уровень звука на расстоянии 1 м, дБА |
68 |
|
Напряжение/частота сети, В/Гц |
380/50 |
|
Масса, кг |
288 |
ГРАД-24

|
ТЕХНИЧЕСКИЕ ХАРАКТЕРИСТИКИ |
|
|
Количество охлаждаемой, м3/час |
24 |
|
Площадь поверхности оросителя, м2 |
130 |
|
Расчетный тепловой поток при разности температур по воде Δt=5оС, кВт |
140 |
|
Диапазон регулирования производительности, % |
40-100 |
|
Площадь орошения, м2 |
0,95 |
|
Количество форсунок, шт. |
4 |
|
Количество вентиляторов, шт. |
1 |
|
Тип вентилятора |
06-300 |
|
Диаметр рабочего колеса, мм |
630 |
|
Частота вращения колеса вентилятора, об/мин |
1500 |
|
Установленная мощность электродвигателя, кВт |
1,1 |
|
Уровень звука на расстоянии 1 м, дБА |
79 |
|
Напряжение/частота сети, В/Гц |
380/50 |
|
Масса, кг |
288 |
ГРАД-28

|
ТЕХНИЧЕСКИЕ ХАРАКТЕРИСТИКИ |
|
|
Количество охлаждаемой, м3/час |
28 |
|
Площадь поверхности оросителя, м2 |
175 |
|
Расчетный тепловой поток при разности температур по воде Δt=5оС, кВт |
160 |
|
Диапазон регулирования производительности, % |
35-100 |
|
Площадь орошения, м2 |
0,95 |
|
Количество форсунок, шт. |
4 |
|
Количество вентиляторов, шт. |
1 |
|
Тип вентилятора |
06-300 |
|
Диаметр рабочего колеса, мм |
630 |
|
Частота вращения колеса вентилятора, об/мин |
1500 |
|
Установленная мощность электродвигателя, кВт |
1,1 |
|
Уровень звука на расстоянии 1 м, дБА |
79 |
|
Напряжение/частота сети, В/Гц |
380/50 |
|
Масса, кг |
288 |
ГРАД-32

|
ТЕХНИЧЕСКИЕ ХАРАКТЕРИСТИКИ |
|
|
Количество охлаждаемой, м3/час |
32 |
|
Площадь поверхности оросителя, м2 |
175 |
|
Расчетный тепловой поток при разности температур по воде Δt=5оС, кВт |
190 |
|
Диапазон регулирования производительности, % |
45-100 |
|
Площадь орошения, м2 |
1,89 |
|
Количество форсунок, шт. |
6 |
|
Количество вентиляторов, шт. |
1 |
|
Тип вентилятора |
06-300 |
|
Диаметр рабочего колеса, мм |
800 |
|
Частота вращения колеса вентилятора, об/мин |
1500 |
|
Установленная мощность электродвигателя, кВт |
3,0 |
|
Уровень звука на расстоянии 1 м, дБА |
90 |
|
Напряжение/частота сети, В/Гц |
380/50 |
|
Масса, кг |
435 |
ГРАД-50

|
ТЕХНИЧЕСКИЕ ХАРАКТЕРИСТИКИ |
|
|
Количество охлаждаемой, м3/час |
50 |
|
Площадь поверхности оросителя, м2 |
350 |
|
Расчетный тепловой поток при разности температур по воде Δt=5оС, кВт |
300 |
|
Диапазон регулирования производительности, % |
50-100 |
|
Площадь орошения, м2 |
1,89 |
|
Количество форсунок, шт. |
10 |
|
Количество вентиляторов, шт. |
1 |
|
Тип вентилятора |
06-300 |
|
Диаметр рабочего колеса, мм |
800 |
|
Частота вращения колеса вентилятора, об/мин |
1500 |
|
Установленная мощность электродвигателя, кВт |
3,0 |
|
Уровень звука на расстоянии 1 м, дБА |
90 |
|
Напряжение/частота сети, В/Гц |
380/50 |
|
Масса, кг |
520 |
ГРАД-60М

|
ТЕХНИЧЕСКИЕ ХАРАКТЕРИСТИКИ |
|
|
Количество охлаждаемой, м3/час |
60 |
|
Площадь поверхности оросителя, м2 |
378 |
|
Расчетный тепловой поток при разности температур по воде Δt=5оС, кВт |
350 |
|
Диапазон регулирования производительности, % |
50-100 |
|
Площадь орошения, м2 |
3,77 |
|
Количество форсунок, шт. |
12 |
|
Количество вентиляторов, шт. |
1 |
|
Тип вентилятора |
06-300 |
|
Диаметр рабочего колеса, мм |
1250 |
|
Частота вращения колеса вентилятора, об/мин |
750 |
|
Установленная мощность электродвигателя, кВт |
4,0 |
|
Уровень звука на расстоянии 1 м, дБА |
96 |
|
Напряжение/частота сети, В/Гц |
380/50 |
|
Масса, кг |
844 |
ГРАД-75

|
ТЕХНИЧЕСКИЕ ХАРАКТЕРИСТИКИ |
|
|
Количество охлаждаемой, м3/час |
75 |
|
Площадь поверхности оросителя, м2 |
378 |
|
Расчетный тепловой поток при разности температур по воде Δt=5оС, кВт |
450 |
|
Диапазон регулирования производительности, % |
40-100 |
|
Площадь орошения, м2 |
3,77 |
|
Количество форсунок, шт. |
12 |
|
Количество вентиляторов, шт. |
1 |
|
Тип вентилятора |
06-300 |
|
Диаметр рабочего колеса, мм |
1250 |
|
Частота вращения колеса вентилятора, об/мин |
1000 |
|
Установленная мощность электродвигателя, кВт |
7,5 |
|
Уровень звука на расстоянии 1 м, дБА |
102 |
|
Напряжение/частота сети, В/Гц |
380/50 |
|
Масса, кг |
844 |
ГРАД-90М

|
ТЕХНИЧЕСКИЕ ХАРАКТЕРИСТИКИ |
|
|
Количество охлаждаемой, м3/час |
90 |
|
Площадь поверхности оросителя, м2 |
756 |
|
Расчетный тепловой поток при разности температур по воде Δt=5оС, кВт |
550 |
|
Диапазон регулирования производительности, % |
55-100 |
|
Площадь орошения, м2 |
3,77 |
|
Количество форсунок, шт. |
21 |
|
Количество вентиляторов, шт. |
1 |
|
Тип вентилятора |
06-300 |
|
Диаметр рабочего колеса, мм |
1250 |
|
Частота вращения колеса вентилятора, об/мин |
750 |
|
Установленная мощность электродвигателя, кВт |
4,0 |
|
Уровень звука на расстоянии 1 м, дБА |
96 |
|
Напряжение/частота сети, В/Гц |
380/50 |
|
Масса, кг |
990 |
ГРАД-120

|
ТЕХНИЧЕСКИЕ ХАРАКТЕРИСТИКИ |
|
|
Количество охлаждаемой, м3/час |
120 |
|
Площадь поверхности оросителя, м2 |
756 |
|
Расчетный тепловой поток при разности температур по воде Δt=5оС, кВт |
700 |
|
Диапазон регулирования производительности, % |
40-100 |
|
Площадь орошения, м2 |
3,77 |
|
Количество форсунок, шт. |
21 |
|
Количество вентиляторов, шт. |
1 |
|
Тип вентилятора |
06-300 |
|
Диаметр рабочего колеса, мм |
1250 |
|
Частота вращения колеса вентилятора, об/мин |
1000 |
|
Установленная мощность электродвигателя, кВт |
7,5 |
|
Уровень звука на расстоянии 1 м, дБА |
102 |
|
Напряжение/частота сети, В/Гц |
380/50 |
|
Масса, кг |
990 |
ГРАД-170

|
ТЕХНИЧЕСКИЕ ХАРАКТЕРИСТИКИ |
|
|
Количество охлаждаемой, м3/час |
170 |
|
Площадь поверхности оросителя, м2 |
985 |
|
Расчетный тепловой поток при разности температур по воде Δt=5оС, кВт |
1000 |
|
Диапазон регулирования производительности, % |
50-100 |
|
Площадь орошения, м2 |
6,5 |
|
Количество форсунок, шт. |
35 |
|
Количество вентиляторов, шт. |
1 |
|
Тип вентилятора |
12-284 |
|
Диаметр рабочего колеса, мм |
1400 |
|
Частота вращения колеса вентилятора, об/мин |
1000 |
|
Установленная мощность электродвигателя, кВт |
11,0 |
|
Уровень звука на расстоянии 1 м, дБА |
99 |
|
Напряжение/частота сети, В/Гц |
380/50 |
|
Масса, кг |
1750 |
ГРАД-280

|
ТЕХНИЧЕСКИЕ ХАРАКТЕРИСТИКИ |
|
|
Количество охлаждаемой, м3/час |
280 |
|
Площадь поверхности оросителя, м2 |
1869 |
|
Расчетный тепловой поток при разности температур по воде Δt=5оС, кВт |
1620 |
|
Диапазон регулирования производительности, % |
40-100 |
|
Площадь орошения, м2 |
10 |
|
Количество форсунок, шт. |
48 |
|
Количество вентиляторов, шт. |
1 |
|
Тип вентилятора |
13-284 |
|
Диаметр рабочего колеса, мм |
1600 |
|
Частота вращения колеса вентилятора, об/мин |
1000 |
|
Установленная мощность электродвигателя, кВт |
15,0 |
|
Уровень звука на расстоянии 1 м, дБА |
104 |
|
Напряжение/частота сети, В/Гц |
380/50 |
|
Масса, кг |
2230 |
ГРАД-400

|
ТЕХНИЧЕСКИЕ ХАРАКТЕРИСТИКИ |
|
|
Количество охлаждаемой, м3/час |
400 |
|
Площадь поверхности оросителя, м2 |
2670 |
|
Расчетный тепловой поток при разности температур по воде Δt=5оС, кВт |
2325 |
|
Диапазон регулирования производительности, % |
40-100 |
|
Площадь орошения, м2 |
13 |
|
Количество форсунок, шт. |
72 |
|
Количество вентиляторов, шт. |
1 |
|
Тип вентилятора |
13-284 |
|
Диаметр рабочего колеса, мм |
2000 |
|
Частота вращения колеса вентилятора, об/мин |
750 |
|
Установленная мощность электродвигателя, кВт |
22,0 |
|
Уровень звука на расстоянии 1 м, дБА |
107 |
|
Напряжение/частота сети, В/Гц |
380/50 |
|
Масса, кг |
3240 |