|
Каталоги Евромаш референц-лист |
|
Каталоги Евромаш руководство |
|
Каталоги Евромаш паспорт |
Группа Компаний Евромаш с 1994 года производит и поставляет инженерное оборудование для разных отраслей, включая системы вентиляции, отопления, водоснабжения и водоотведения. Предприятие выпускает градирни только вентиляторного типа, и не занимается производством эжекционных. Производимые градирни просты в установке, поэтому не требуется привлечения дополнительных специалистов.

Градирни ЕВРОМАШ обладают повышенной надежностью и долговечностью, обеспечивая бесперебойную работу всей системы в течение более долгого срока. Также они имеют высокую производительность, оптимально охлаждая агрегаты, не требуя больших затрат энергии.

Вентиляторные градирни ЕВРОМАШ-В
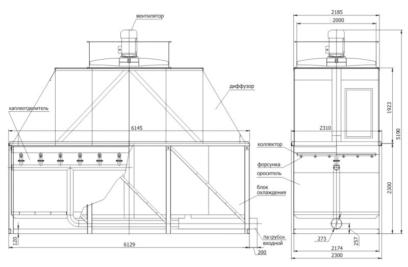
Вентиляторные градирни ЕВРОМАШ-В-3000 и ЕВРОМАШ-В-4500 заменяют стандартные секционные градирни с вентиляторами ВГ-25 и ВГ-50, позволяют снизить водо- и энергопотребление предприятия. Поставляются они уже готовыми к эксплуатации, в виде двух блоков. Установить градирню следует над бассейном на уровне от 1,5 до 2 м, по необходимости можно смонтировать несколько установок рядом. Материалы, из которых производятся комплектующие, обеспечивают успешную работу агрегата на промышленных, строительных и других предприятиях. Корпус градирни изготавливается из нержавеющей стали, вентилятор из армированного стеклопластика, форсунки цельнофакельные, производятся из полиэтилена низкого давления вакуумной штамповки.

Вентиляторная градирня ЕВРОМАШ-В-4500

Схема установки градирни ЕВРОМАШ-В

Технические характеристики вентиляторных градирен ЕВРОМАШ-В
|
Основные технические характеристики |
Градирни ЕВРОМАШ-В-3000 |
Градирни ЕВРОМАШ-В-4500 |
|
Расход воды, м3/час : |
||
|
Максимальный |
320 |
500 |
|
Номинальный |
250 |
380 |
|
Минимальный |
120 |
175 |
|
Тепловой поток при начальной температуре воды 40°С, кВт: |
||
|
При максимальном расходе воды |
2734 |
4215 |
|
При номинальном расходе воды |
2586 |
3965 |
|
При минимальном расходе воды |
1983 |
2965 |
|
Температура охлажденной воды, °С: |
||
|
При максимальном расходе воды |
32 |
|
|
При номинальном расходе воды |
30 |
|
|
При минимальном расходе воды |
25 |
|
|
Вентилятор серии ВО-12-285: |
№16 |
№20 |
|
Регулируемый привод 0-100% |
||
|
Номинальная мощность привода, кВт |
15 |
22 |
|
Номинальная частота вращения, об/мин |
985 |
745 |
|
Водоподводящий трубопровод, мм |
159 |
250 |
|
Габаритные размеры градирни, мм: |
||
|
Ширина |
2300 |
2300 |
|
Длина |
4250 |
6250 |
|
Высота |
4900 |
5100 |
|
Вес градирни, кг |
2000 |
3000 |
Определение основных технических параметров градирни
Основными параметрами, определяющими рабочие процессы в градирне, являются:
Расход воды через градирню может быть определен по давлению воды во входном коллекторе. Абсолютное давление воды необходимо определять по манометру, устанавливаемому перед входным коллектором:
Н=10*РA,
где Н - напор перед форсункой (м вод. ст.),
РA - показания манометра (кг/см²).
Зная полный напор и количество форсунок, используя график, можно определить расход воды через градирню:
GW=G1W*n,
Где G1W - расход воды через форсунку (м3/ч),
n - количество форсунок (шт.).
Количество воды, которое необходимо добавлять в систему для компенсации испарения, определяется исходя из расхода воды и разности температур воды на входе и на выходе из градирни:
ΔGW=1,67GW*C P *(tBX-tBЫX),
Где ΔGW- величина подпитки (кг/час),
CP - теплоемкость воды (ккал/кг град),
tBX - температура воды на входе в градирню (°C)
tBЫX - температура воды на выходе из градирни(°C)
Величина капельного уноса составляет 0,1% от количества воды, проходящей через градирню при номинальном режиме. Снижение расхода воды через градирню уменьшает величину капельного уноса до 0,05%. Увеличение расхода воды выше номинального не рекомендуется.
Количество тепла, отводимое через градирню:
QГ=GW*CP*(tBX-tBЫX) (ккал/час),
либо QГ=GW*CP*(tBX-tBЫX)/860 (кВт).
Примечание
Рекомендуемый диапазон давлений для цельнофакельной форсунки от 1,2 до 7,0 метров водяного столба (0.12…0.7 Атм).
При данном диапазоне давлений обеспечивается полное раскрытие и заполнение факела форсунки капельной влагой.
При давлении ниже указанного раскрытие факела не происходит, а при давлениях выше рекомендуемого может наблюдаться повышение капельного уноса воды. Превышение давления перед форсунками обычно свидетельствует о их засорении и необходимости их очистки.

Технические характеристики
|
Модификация градирни ЕВРОМАШ- |
Тепловой поток* |
Номинальный расход |
Количество форсунок |
Габаритные размеры |
Диаметр патрубков градирни |
Масса сухой градирни*** |
Осевой вентилятор с рабочим колесом из композитных материалов |
|||
|
высота × длина × ширина |
входной |
сливной |
Типоразмер |
N, |
n, |
|||||
|
кВт |
м3/час |
шт |
мм |
мм |
кг |
кВт |
мин-1 |
|||
|
50 (46) |
46 |
8 |
2 |
2085 х |
51 |
60 |
125 |
5 |
0,37 |
1500 |
|
70 |
70 |
12 |
2 |
2600 х |
76 |
100 |
231 |
6,3 |
0,75 |
1000 |
|
100 (95) |
95 |
16 |
3 |
1,1 |
1500 |
|||||
|
120 |
120 |
20 |
4 |
3100 х |
288 |
6,3 |
0,75 |
1000 |
||
|
140 |
140 |
24 |
1,1 |
1500 |
||||||
|
160 |
160 |
28 |
1,1 |
1500 |
||||||
|
190 |
190 |
32 |
6 |
3025 х |
108 |
140 |
435 |
8 |
3,0 |
1500 |
|
300 |
300 |
50 |
10 |
3525 х |
520 |
3,0 |
1500 |
|||
|
350 |
350 |
60 |
12 |
3350 х |
135 |
200 |
844 |
12,5 |
4,0 |
750 |
|
450 |
450 |
75 |
7,5 |
1000 |
||||||
|
550 |
550 |
90 |
21 |
3850 х |
990 |
4,0 |
750 |
|||
|
700 |
700 |
120 |
7,5 |
1000 |
||||||
|
1000 |
1000 |
170 |
35 |
4035 х |
156 |
250 |
1650 |
14 |
11,0 |
1000 |
|
1650 |
1650 |
280 |
48 |
4250 х |
2х |
250 |
2100 |
16 |
15,0 |
1000 |
|
2400 (2350) |
2325 |
400 |
72 |
4750 х |
273 |
315 |
3240 |
20 |
22,0 |
750 |
|
Срок изготовления любой модели: |
в течении 15...20 рабочих дней |
|||||||||
* Здесь приведены значения отводимого в окружающую среду теплового потока при условии прохождения через градирню номинального расхода охлаждаемой воды и обеспечении перепада температур охлаждаемой воды не более 5°С.
** указан номинальный расход охлаждаемой воды при котором градирни будут отводить указанное в таблице количество тепла (тепловой поток) в окружающую среду и снижать температуру охлаждаемой воды на 5°С. Количество испаряющейся в атмосферу воды составляет 1...2% от величины расхода. Таким же должно быть количество свежей воды, которым будет подпитываться система оборотного цикла водоснабжения, в котором используется градирня.
*** указана масса сухой градирни. Вес с водой составит +10% к весу сухой градирни.
Таблицы взаимозаменяемости градирнями ЕВРОМАШ градирен ГРД и Росинка
После снятия в 2013 году с серийного производства вентиляторных градирен ГРД, наступает момент технической замены устаревающего оборудования на более современный и компактный вариант градирен ЕВРОМАШ. Они отличаются повышенным качеством и сроком эксплуатации.

Градирни ГРД и ЕВРОМАШ.
|
Градирня ГРД-8, |
Градирня ЕВРОМАШ-50, |
|
|
Градирня ГРД-12, |
Градирня ЕВРОМАШ-70, |
|
|
Градирня ГРД-16, |
Градирня ЕВРОМАШ-100, |
|
|
Градирня ГРД-24, |
Градирня ЕВРОМАШ-140, |
Градирня ЕВРОМАШ-120, |
|
Градирня ГРД-32, |
Градирня ЕВРОМАШ-190, |
Градирня ЕВРОМАШ-160, |
|
Градирня ГРД-50, |
Градирня ЕВРОМАШ-300, |
Градирня ЕВРОМАШ-350, |
|
Градирня ГРД-100, |
Градирня ЕВРОМАШ-550, |
Градирня ЕВРОМАШ-700, |
|
Градирня ГРД-150, |
Градирня ЕВРОМАШ-1000, |
Градирня ЕВРОМАШ-700, |
|
Градирня ГРД-350, |
Градирня ЕВРОМАШ-2400, |
Градирня ЕВРОМАШ-1650, |

Градирни ЕВРОМАШ и миниградирни Росинка
|
Росинка 5, |
ЕВРОМАШ-50, |
|
|
Росинка 10/20, |
ЕВРОМАШ-120, |
ЕВРОМАШ-100, |
|
Росинка 30/40, |
ЕВРОМАШ-300, |
ЕВРОМАШ-190, |
|
Росинка 50/60, |
Градирня ЕВРОМАШ-350, |
ЕВРОМАШ-300, |
|
Росинка 80/100, |
ЕВРОМАШ-700, |
ЕВРОМАШ-550, |
