|
Каталог мокрые градирни |
Компания NCT является первым в России разработчиком и изготовителем мокрых градирен, вышедшим на международный рынок. Вся продукция компании изготовлена с использованием самых передовых технологий и соответствует наиболее строгим европейским стандартам качества и надежности.
Сотрудниками компании NCT налажен полный производственный цикл от разработки до производства, с последующим внедрением оборудования. Благодаря собственному разделу разработки, компанией NCT внедряются самые современные и инновационные решения, касающиеся повышения эффективности и качества выпускаемого оборудования.
За счет внедрения расширенной системы качества, все производственные линии компании NCT выпускают продукцию согласно требованиям стандарта качества ISO9000.
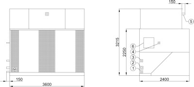
ГРАДИРНИ VR1-1

Номинальный расход воды: 40 м3/ч
Номинальная мощность охлаждения: 230 кВт

1 — слив, 2 — выход воды, 3 — перелив, 4 — подпитка, 5 — вход воды, 6 — сервисный люк.
| Модель | Масса рабочая (кг) | Масса брутто (кг) | Масса самой тяжелой секции (кг) | Высота (мм) | Длина (мм) | Ширина (мм) | Мощность электродвигателя вентилятора (кВт) | Наружный диаметр подающего трубопровода (мм) | Наружный диаметр отводящего трубопровода (мм) |
| VR1-1-XYZ-O | 3582 | 1982 | 1283 | 3215 | 3600 | 2400 | 1х11 | 1х150 | 1х200 |
| VR1-1-XYZ-P | 3605 | 2005 | 1260 | 3215 | 3600 | 2400 | 1х15 | 1х150 | 1х200 |
| VR1-1-XYZ-Q | 3619 | 2019 | 1272 | 3215 | 3600 | 2400 | 1х18,5 | 1х150 | 1х200 |
| VR1-1-XYZ-R | 3656 | 2056 | 1209 | 3215 | 3600 | 2400 | 1х22 | 1х150 | 1х200 |
| VR1-1-XYZ-S | 3691 | 2091 | 1244 | 3215 | 3600 | 2400 | 1х30 | 1х150 | 1х200 |
XYZ — буквенно-цифровой код модели в соответствии с выбранной комплектацией, опциями, типом
оросителя и форсунок, исполнением корпуса.
Примечание: Данные чертежи не использовать для проектирования. Необходимо пользоваться
чертежами, выпущенными компанией NCT при заказе оборудования.
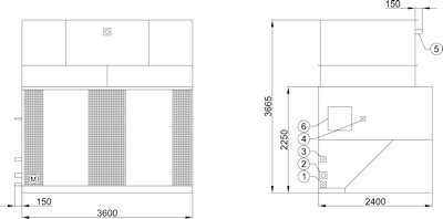
ГРАДИРНИ VR1-2

Номинальный расход воды: 95 м3/ч
Номинальная мощность охлаждения: 550 кВт

1 — слив, 2 — выход воды, 3 — перелив, 4 — подпитка, 5 — вход воды, 6 — сервисный люк.
| Модель | Масса рабочая (кг) | Масса брутто (кг) | Масса самой тяжелой секции (кг) | Высота (мм) | Длина (мм) | Ширина (мм) | Мощность электродвигателя вентилятора (кВт) | Наружный диаметр подающего трубопровода (мм) | Наружный диаметр отводящего трубопровода (мм) |
| VR1-2-XYZ-O | 3869 | 2269 | 1304 | 3665 | 3600 | 2400 | 1х11 | 1х150 | 1х200 |
| VR1-2-XYZ-P | 3892 | 2292 | 1327 | 3665 | 3600 | 2400 | 1х15 | 1х150 | 1х200 |
| VR1-2-XYZ-Q | 3906 | 2306 | 1341 | 3665 | 3600 | 2400 | 1х18,5 | 1х150 | 1х200 |
| VR1-2-XYZ-R | 3943 | 2343 | 1378 | 3665 | 3600 | 2400 | 1х22 | 1х150 | 1х200 |
| VR1-2-XYZ-S | 3978 | 2378 | 1413 | 3665 | 3600 | 2400 | 1х30 | 1х150 | 1х200 |
XYZ — буквенно-цифровой код модели в соответствии с выбранной комплектацией, опциями, типом
оросителя и форсунок, исполнением корпуса.
Примечание: Данные чертежи не использовать для проектирования. Необходимо пользоваться
чертежами, выпущенными компанией NCT при заказе оборудования.
ГРАДИРНИ VR1-3

Номинальный расход воды: 140 м3/ч
Номинальная мощность охлаждения: 800 кВт

1 — слив, 2 — выход воды, 3 — перелив, 4 — подпитка, 5 — вход воды, 6 — сервисный люк.
| Модель | Масса рабочая (кг) | Масса брутто (кг) | Масса самой тяжелой секции (кг) | Высота (мм) | Длина (мм) | Ширина (мм) | Мощность электродвигателя вентилятора (кВт) | Наружный диаметр подающего трубопровода (мм) | Наружный диаметр отводящего трубопровода (мм) |
| VR1-3-XYZ-P | 4116 | 2516 | 1459 | 4015 | 3600 | 2400 | 1х15 | 1х150 | 1х200 |
| VR1-3-XYZ-Q | 4130 | 2530 | 1473 | 4015 | 3600 | 2400 | 1х18,5 | 1х150 | 1х200 |
| VR1-3-XYZ-R | 4167 | 2567 | 1510 | 4015 | 3600 | 2400 | 1х22 | 1х150 | 1х200 |
| VR1-3-XYZ-S | 4202 | 2602 | 1545 | 4015 | 3600 | 2400 | 1х30 | 1х150 | 1х200 |
| VR1-3-XYZ-T | 4240 | 2640 | 1583 | 4015 | 3600 | 2400 | 1х37 | 1х150 | 1х200 |
XYZ — буквенно-цифровой код модели в соответствии с выбранной комплектацией, опциями, типом
оросителя и форсунок, исполнением корпуса.
Примечание: Данные чертежи не использовать для проектирования. Необходимо пользоваться
чертежами, выпущенными компанией NCT при заказе оборудования.
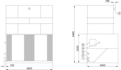
ГРАДИРНИ VR1-4

Номинальный расход воды: 190 м3/ч
Номинальная мощность охлаждения: 1 100 кВт

1 — слив, 2 — выход воды, 3 — перелив, 4 — подпитка, 5 — вход воды, 6 — сервисный люк.
| Модель | Масса рабочая (кг) | Масса брутто (кг) | Масса самой тяжелой секции (кг) | Высота (мм) | Длина (мм) | Ширина (мм) | Мощность электродвигателя вентилятора (кВт) | Наружный диаметр подающего трубопровода (мм) | Наружный диаметр отводящего трубопровода (мм) |
| VR1-4-XYZ-P | 4404 | 2804 | 1628 | 4465 | 3600 | 2400 | 1х15 | 1х150 | 1х200 |
| VR1-4-XYZ-Q | 4418 | 2818 | 1642 | 4465 | 3600 | 2400 | 1х18,5 | 1х150 | 1х200 |
| VR1-4-XYZ-R | 4455 | 2855 | 1679 | 4465 | 3600 | 2400 | 1х22 | 1х150 | 1х200 |
| VR1-4-XYZ-S | 4490 | 2890 | 1714 | 4465 | 3600 | 2400 | 1х30 | 1х150 | 1х200 |
| VR1-4-XYZ-T | 4528 | 2928 | 1752 | 4465 | 3600 | 2400 | 1х37 | 1х150 | 1х200 |
XYZ — буквенно-цифровой код модели в соответствии с выбранной комплектацией, опциями, типом
оросителя и форсунок, исполнением корпуса.
Примечание: Данные чертежи не использовать для проектирования. Необходимо пользоваться
чертежами, выпущенными компанией NCT при заказе оборудования.
ГРАДИРНИ VR2-1

Номинальный расход воды: 235 м3/ч
Номинальная мощность охлаждения: 1 400 кВт

1 — слив, 2 — выход воды, 3 — перелив, 4 — подпитка, 5 — вход воды, 6 — сервисный люк.
| Модель | Масса рабочая (кг) | Масса брутто (кг) | Масса самой тяжелой секции (кг) | Высота (мм) | Длина (мм) | Ширина (мм) | Мощность электродвигателя вентилятора (кВт) | Наружный диаметр подающего трубопровода (мм) | Наружный диаметр отводящего трубопровода (мм) |
| VR2-1-XYZ-P | 4955 | 2655 | 1526 | 3215 | 4800 | 2400 | 1х15 | 1х200 | 1х250 |
| VR2-1-XYZ-Q | 4969 | 2669 | 1540 | 3215 | 4800 | 2400 | 1х18,5 | 1х200 | 1х250 |
| VR2-1-XYZ-R | 5006 | 2706 | 1577 | 3215 | 4800 | 2400 | 1х22 | 1х200 | 1х250 |
| VR2-1-XYZ-S | 5041 | 2741 | 1612 | 3215 | 4800 | 2400 | 1х30 | 1х200 | 1х250 |
| VR2-1-XYZ-T | 5079 | 2779 | 1650 | 3215 | 4800 | 2400 | 1х37 | 1х200 | 1х250 |
XYZ — буквенно-цифровой код модели в соответствии с выбранной комплектацией, опциями, типом
оросителя и форсунок, исполнением корпуса.
Примечание: Данные чертежи не использовать для проектирования. Необходимо пользоваться
чертежами, выпущенными компанией NCT при заказе оборудования.
ГРАДИРНИ VR2-2

Номинальный расход воды: 280 м3/ч
Номинальная мощность охлаждения: 1 600 кВт

1 — слив, 2 — выход воды, 3 — перелив, 4 — подпитка, 5 — вход воды, 6 — сервисный люк.
| Модель | Масса рабочая (кг) | Масса брутто (кг) | Масса самой тяжелой секции (кг) | Высота (мм) | Длина (мм) | Ширина (мм) | Мощность электродвигателя вентилятора (кВт) | Наружный диаметр подающего трубопровода (мм) | Наружный диаметр отводящего трубопровода (мм) |
| VR2-2-XYZ-P | 5338 | 3038 | 1752 | 3665 | 4800 | 2400 | 1х15 | 1х200 | 1х250 |
| VR2-2-XYZ-Q | 5352 | 3052 | 1766 | 3665 | 4800 | 2400 | 1х18,5 | 1х200 | 1х250 |
| VR2-2-XYZ-R | 5389 | 3089 | 1803 | 3665 | 4800 | 2400 | 1х22 | 1х200 | 1х250 |
| VR2-2-XYZ-S | 5424 | 3124 | 1838 | 3665 | 4800 | 2400 | 1х30 | 1х200 | 1х250 |
| VR2-2-XYZ-T | 5462 | 3162 | 1876 | 3665 | 4800 | 2400 | 1х37 | 1х200 | 1х250 |
XYZ — буквенно-цифровой код модели в соответствии с выбранной комплектацией, опциями, типом
оросителя и форсунок, исполнением корпуса.
Примечание: Данные чертежи не использовать для проектирования. Необходимо пользоваться
чертежами, выпущенными компанией NCT при заказе оборудования.
ГРАДИРНИ VR2-3

Номинальный расход воды: 330 м3/ч
Номинальная мощность охлаждения: 1 900 кВт

1 — слив, 2 — выход воды, 3 — перелив, 4 — подпитка, 5 — вход воды, 6 — сервисный люк.
| Модель | Масса рабочая (кг) | Масса брутто (кг) | Масса самой тяжелой секции (кг) | Высота (мм) | Длина (мм) | Ширина (мм) | Мощность электродвигателя вентилятора (кВт) | Наружный диаметр подающего трубопровода (мм) | Наружный диаметр отводящего трубопровода (мм) |
| VR2-3-XYZ-Q | 5651 | 3351 | 1941 | 4015 | 4800 | 2400 | 1х18,5 | 1х200 | 1х250 |
| VR2-3-XYZ-R | 5688 | 3388 | 1978 | 4015 | 4800 | 2400 | 1х22 | 1х200 | 1х250 |
| VR2-3-XYZ-S | 5723 | 3423 | 2013 | 4015 | 4800 | 2400 | 1х30 | 1х200 | 1х250 |
| VR2-3-XYZ-T | 5785 | 3485 | 2051 | 4015 | 4800 | 2400 | 1х37 | 1х200 | 1х250 |
| VR2-3-XYZ-U | 5798 | 3498 | 2088 | 4015 | 4800 | 2400 | 1х45 | 1х200 | 1х250 |
XYZ — буквенно-цифровой код модели в соответствии с выбранной комплектацией, опциями, типом
оросителя и форсунок, исполнением корпуса.
Примечание: Данные чертежи не использовать для проектирования. Необходимо пользоваться
чертежами, выпущенными компанией NCT при заказе оборудования.
ГРАДИРНИ VR2-4

Номинальный расход воды: 375 м3/ч
Номинальная мощность охлаждения: 2 200 кВт

1 — слив, 2 — выход воды, 3 — перелив, 4 — подпитка, 5 — вход воды, 6 — сервисный люк.
| Модель | Масса рабочая (кг) | Масса брутто (кг) | Масса самой тяжелой секции (кг) | Высота (мм) | Длина (мм) | Ширина (мм) | Мощность электродвигателя вентилятора (кВт) | Наружный диаметр подающего трубопровода (мм) | Наружный диаметр отводящего трубопровода (мм) |
| VR2-4-XYZ-Q | 6034 | 3734 | 2167 | 4465 | 4800 | 2400 | 1х18,5 | 1х200 | 1х250 |
| VR2-4-XYZ-R | 6071 | 3771 | 2204 | 4465 | 4800 | 2400 | 1х22 | 1х200 | 1х250 |
| VR2-4-XYZ-S | 6106 | 3806 | 2239 | 4465 | 4800 | 2400 | 1х30 | 1х200 | 1х250 |
| VR2-4-XYZ-T | 6144 | 3844 | 2277 | 4465 | 4800 | 2400 | 1х37 | 1х200 | 1х250 |
| VR2-4-XYZ-U | 6181 | 3881 | 2314 | 4465 | 4800 | 2400 | 1х45 | 1х200 | 1х250 |
XYZ — буквенно-цифровой код модели в соответствии с выбранной комплектацией, опциями, типом
оросителя и форсунок, исполнением корпуса.
Примечание: Данные чертежи не использовать для проектирования. Необходимо пользоваться
чертежами, выпущенными компанией NCT при заказе оборудования.
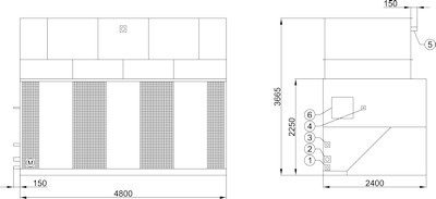
ГРАДИРНИ VR3-1

Номинальный расход воды: 420 м3/ч
Номинальная мощность охлаждения: 2 400 кВт

1 — слив, 2 — выход воды, 3 — перелив, 4 — подпитка, 5 — вход воды, 6 — сервисный люк.
| Модель | Масса рабочая (кг) | Масса брутто (кг) | Масса самой тяжелой секции (кг) | Высота (мм) | Длина (мм) | Ширина (мм) | Мощность электродвигателя вентилятора (кВт) | Наружный диаметр подающего трубопровода (мм) | Наружный диаметр отводящего трубопровода (мм) |
| VR3-1-XYZ-O | 7249 | 4049 | 2321 | 3215 | 7350 | 2400 | 2х11 | 2х150 | 1х250 |
| VR3-1-XYZ-P | 7295 | 4095 | 2367 | 3215 | 7350 | 2400 | 2х15 | 2х150 | 1х250 |
| VR3-1-XYZ-Q | 7323 | 4123 | 2395 | 3215 | 7350 | 2400 | 2х18,5 | 2х150 | 1х250 |
| VR3-1-XYZ-R | 7397 | 4197 | 2469 | 3215 | 7350 | 2400 | 2х22 | 2х150 | 1х250 |
| VR3-1-XYZ-S | 7467 | 4267 | 2539 | 3215 | 7350 | 2400 | 2х30 | 2х150 | 1х250 |
XYZ — буквенно-цифровой код модели в соответствии с выбранной комплектацией, опциями, типом
оросителя и форсунок, исполнением корпуса.
Примечание: Данные чертежи не использовать для проектирования. Необходимо пользоваться
чертежами, выпущенными компанией NCT при заказе оборудования.
ГРАДИРНИ VR3-2

Номинальный расход воды: 460 м3/ч
Номинальная мощность охлаждения: 2 700 кВт

1 — слив, 2 — выход воды, 3 — перелив, 4 — подпитка, 5 — вход воды, 6 — сервисный люк.
| Модель | Масса рабочая (кг) | Масса брутто (кг) | Масса самой тяжелой секции (кг) | Высота (мм) | Длина (мм) | Ширина (мм) | Мощность электродвигателя вентилятора (кВт) | Наружный диаметр подающего трубопровода (мм) | Наружный диаметр отводящего трубопровода (мм) |
| VR3-2-XYZ-O | 7836 | 4636 | 2666 | 3665 | 7350 | 2400 | 2х11 | 2х150 | 1х250 |
| VR3-2-XYZ-P | 7882 | 4682 | 2712 | 3665 | 7350 | 2400 | 2х15 | 2х150 | 1х250 |
| VR3-2-XYZ-Q | 7910 | 4710 | 2740 | 3665 | 7350 | 2400 | 2х18,5 | 2х150 | 1х250 |
| VR3-2-XYZ-R | 7984 | 4784 | 2814 | 3665 | 7350 | 2400 | 2х22 | 2х150 | 1х250 |
| VR3-2-XYZ-S | 8054 | 4854 | 2884 | 3665 | 7350 | 2400 | 2х30 | 2х150 | 1х250 |
XYZ — буквенно-цифровой код модели в соответствии с выбранной комплектацией, опциями, типом
оросителя и форсунок, исполнением корпуса.
Примечание: Данные чертежи не использовать для проектирования. Необходимо пользоваться
чертежами, выпущенными компанией NCT при заказе оборудования.
ГРАДИРНИ VR3-3

Номинальный расход воды: 500 м3/ч
Номинальная мощность охлаждения: 2 900 кВт

1 — слив, 2 — выход воды, 3 — перелив, 4 — подпитка, 5 — вход воды, 6 — сервисный люк.
| Модель | Масса рабочая (кг) | Масса брутто (кг) | Масса самой тяжелой секции (кг) | Высота (мм) | Длина (мм) | Ширина (мм) | Мощность электродвигателя вентилятора (кВт) | Наружный диаметр подающего трубопровода (мм) | Наружный диаметр отводящего трубопровода (мм) |
| VR3-3-XYZ-P | 8339 | 5139 | 2981 | 4015 | 7350 | 2400 | 2х15 | 2х150 | 1х250 |
| VR3-3-XYZ-Q | 8367 | 5167 | 3009 | 4015 | 7350 | 2400 | 2х18,5 | 2х150 | 1х250 |
| VR3-3-XYZ-R | 8441 | 5241 | 3083 | 4015 | 7350 | 2400 | 2х22 | 2х150 | 1х250 |
| VR3-3-XYZ-S | 8511 | 5311 | 3153 | 4015 | 7350 | 2400 | 2х30 | 2х150 | 1х250 |
| VR3-3-XYZ-T | 8587 | 5387 | 3229 | 4015 | 7350 | 2400 | 2х37 | 2х150 | 1х250 |
XYZ — буквенно-цифровой код модели в соответствии с выбранной комплектацией, опциями, типом
оросителя и форсунок, исполнением корпуса.
Примечание: Данные чертежи не использовать для проектирования. Необходимо пользоваться
чертежами, выпущенными компанией NCT при заказе оборудования.
ГРАДИРНИ VR3-4

Номинальный расход воды: 550 м3/ч
Номинальная мощность охлаждения: 3 200 кВт

1 — слив, 2 — выход воды, 3 — перелив, 4 — подпитка, 5 — вход воды, 6 — сервисный люк.
| Модель | Масса рабочая (кг) | Масса брутто (кг) | Масса самой тяжелой секции (кг) | Высота (мм) | Длина (мм) | Ширина (мм) | Мощность электродвигателя вентилятора (кВт) | Наружный диаметр подающего трубопровода (мм) | Наружный диаметр отводящего трубопровода (мм) |
| VR3-4-XYZ-P | 8926 | 5726 | 3326 | 4465 | 7350 | 2400 | 2х15 | 2х150 | 1х250 |
| VR3-4-XYZ-Q | 8954 | 5754 | 3354 | 4465 | 7350 | 2400 | 2х18,5 | 2х150 | 1х250 |
| VR3-4-XYZ-R | 9028 | 5828 | 3428 | 4465 | 7350 | 2400 | 2х22 | 2х150 | 1х250 |
| VR3-4-XYZ-S | 9098 | 5898 | 3498 | 4465 | 7350 | 2400 | 2х30 | 2х150 | 1х250 |
| VR3-4-XYZ-T | 9174 | 5974 | 3644 | 4465 | 7350 | 2400 | 2х37 | 2х150 | 1х250 |
XYZ — буквенно-цифровой код модели в соответствии с выбранной комплектацией, опциями, типом
оросителя и форсунок, исполнением корпуса.
Примечание: Данные чертежи не использовать для проектирования. Необходимо пользоваться
чертежами, выпущенными компанией NCT при заказе оборудования.
ГРАДИРНИ VR4-1

Номинальный расход воды: 600 м3/ч
Номинальная мощность охлаждения: 3 500 кВт

1 — слив, 2 — выход воды, 3 — перелив, 4 — подпитка, 5 — вход воды, 6 — сервисный люк.
| Модель | Масса рабочая (кг) | Масса брутто (кг) | Масса самой тяжелой секции (кг) | Высота (мм) | Длина (мм) | Ширина (мм) | Мощность электродвигателя вентилятора (кВт) | Наружный диаметр подающего трубопровода (мм) | Наружный диаметр отводящего трубопровода (мм) |
| VR4-1-XYZ-P | 9995 | 5395 | 3103 | 3215 | 9750 | 2400 | 2х15 | 2х200 | 1х300 |
| VR4-1-XYZ-Q | 10023 | 5423 | 3131 | 3215 | 9750 | 2400 | 2х18,5 | 2х200 | 1х300 |
| VR4-1-XYZ-R | 10097 | 5497 | 3205 | 3215 | 9750 | 2400 | 2х22 | 2х200 | 1х300 |
| VR4-1-XYZ-S | 10167 | 5567 | 3275 | 3215 | 9750 | 2400 | 2х30 | 2х200 | 1х300 |
| VR4-1-XYZ-T | 10243 | 5643 | 3351 | 3215 | 9750 | 2400 | 2х37 | 2х200 | 1х300 |
XYZ — буквенно-цифровой код модели в соответствии с выбранной комплектацией, опциями, типом
оросителя и форсунок, исполнением корпуса.
Примечание: Данные чертежи не использовать для проектирования. Необходимо пользоваться
чертежами, выпущенными компанией NCT при заказе оборудования.
ГРАДИРНИ VR4-2

Номинальный расход воды: 650 м3/ч
Номинальная мощность охлаждения: 3 800 кВт

1 — слив, 2 — выход воды, 3 — перелив, 4 — подпитка, 5 — вход воды, 6 — сервисный люк.
| Модель | Масса рабочая (кг) | Масса брутто (кг) | Масса самой тяжелой секции (кг) | Высота (мм) | Длина (мм) | Ширина (мм) | Мощность электродвигателя вентилятора (кВт) | Наружный диаметр подающего трубопровода (мм) | Наружный диаметр отводящего трубопровода (мм) |
| VR4-2-XYZ-P | 10774 | 6174 | 3561 | 3665 | 9750 | 2400 | 2х15 | 2х200 | 1х300 |
| VR4-2-XYZ-Q | 10802 | 6202 | 3589 | 3665 | 9750 | 2400 | 2х18,5 | 2х200 | 1х300 |
| VR4-2-XYZ-R | 10876 | 6276 | 3663 | 3665 | 9750 | 2400 | 2х22 | 2х200 | 1х300 |
| VR4-2-XYZ-S | 10946 | 6346 | 3733 | 3665 | 9750 | 2400 | 2х30 | 2х200 | 1х300 |
| VR4-2-XYZ-T | 11022 | 6422 | 3809 | 3665 | 9750 | 2400 | 2х37 | 2х200 | 1х300 |
XYZ — буквенно-цифровой код модели в соответствии с выбранной комплектацией, опциями, типом
оросителя и форсунок, исполнением корпуса.
Примечание: Данные чертежи не использовать для проектирования. Необходимо пользоваться
чертежами, выпущенными компанией NCT при заказе оборудования.
ГРАДИРНИ VR4-3

Номинальный расход воды: 700 м3/ч
Номинальная мощность охлаждения: 4 000 кВт

1 — слив, 2 — выход воды, 3 — перелив, 4 — подпитка, 5 — вход воды, 6 — сервисный люк.
| Модель | Масса рабочая (кг) | Масса брутто (кг) | Масса самой тяжелой секции (кг) | Высота (мм) | Длина (мм) | Ширина (мм) | Мощность электродвигателя вентилятора (кВт) | Наружный диаметр подающего трубопровода (мм) | Наружный диаметр отводящего трубопровода (мм) |
| VR4-3-XYZ-Q | 11408 | 6808 | 3946 | 4015 | 9750 | 2400 | 2х18,5 | 2х200 | 1х300 |
| VR4-3-XYZ-R | 11482 | 6882 | 4020 | 4015 | 9750 | 2400 | 2х22 | 2х200 | 1х300 |
| VR4-3-XYZ-S | 11552 | 6952 | 4090 | 4015 | 9750 | 2400 | 2х30 | 2х200 | 1х300 |
| VR4-3-XYZ-T | 11628 | 7028 | 4166 | 4015 | 9750 | 2400 | 2х37 | 2х200 | 1х300 |
| VR4-3-XYZ-U | 11702 | 7102 | 4240 | 4015 | 9750 | 2400 | 2х45 | 2х200 | 1х300 |
XYZ — буквенно-цифровой код модели в соответствии с выбранной комплектацией, опциями, типом
оросителя и форсунок, исполнением корпуса.
Примечание: Данные чертежи не использовать для проектирования. Необходимо пользоваться
чертежами, выпущенными компанией NCT при заказе оборудования.
ГРАДИРНИ VR4-4

Номинальный расход воды: 750 м3/ч
Номинальная мощность охлаждения: 4 300 кВт

1 — слив, 2 — выход воды, 3 — перелив, 4 — подпитка, 5 — вход воды, 6 — сервисный люк.
| Модель | Масса рабочая (кг) | Масса брутто (кг) | Масса самой тяжелой секции (кг) | Высота (мм) | Длина (мм) | Ширина (мм) | Мощность электродвигателя вентилятора (кВт) | Наружный диаметр подающего трубопровода (мм) | Наружный диаметр отводящего трубопровода (мм) |
| VR4-4-XYZ-Q | 12188 | 7588 | 4404 | 4465 | 9750 | 2400 | 2х18,5 | 2х200 | 1х300 |
| VR4-4-XYZ-R | 12262 | 7662 | 4478 | 4465 | 9750 | 2400 | 2х22 | 2х200 | 1х300 |
| VR4-4-XYZ-S | 12332 | 7732 | 4548 | 4465 | 9750 | 2400 | 2х30 | 2х200 | 1х300 |
| VR4-4-XYZ-T | 12408 | 7808 | 4624 | 4465 | 9750 | 2400 | 2х37 | 2х200 | 1х300 |
| VR4-4-XYZ-U | 12482 | 7882 | 4698 | 4465 | 9750 | 2400 | 2х45 | 2х200 | 1х300 |
XYZ — буквенно-цифровой код модели в соответствии с выбранной комплектацией, опциями, типом
оросителя и форсунок, исполнением корпуса.
Примечание: Данные чертежи не использовать для проектирования. Необходимо пользоваться
чертежами, выпущенными компанией NCT при заказе оборудования.