Основанная в 1992 году компания "ЭКОТЭП" располагает собственными производственными мощностями по изготовлению и модернизации градирен. Всё оборудование и детали градирен проходят обязательные испытания в лабораториях ВНИИ гидротехники им. Б.Е. Веденеева.
Усилиям квалифицированных сотрудников компании "ЭКОТЭП" проводятся работы по экспертной оценке состояния охладителей систем http://gradirniprof.ru/osov, разработке проектно-технической документации на капитальный ремонт или модернизацию градирен, а так же проводится обязательные эксплуатационные испытания оборудования.
На сегодняшний день компанией "ЭКОТЭП" налажен процесс изготовления, монтажа и наладки современного технологического оборудования для градирен.
ВЕНТИЛЯТОРНЫЕ ГРАДИРНИ СВГ

Вентиляторные градирни серии СВГ отличаются высокими показателями водо- и энергосбережения. Конструкция градирен разработана с учетом круглогодичной эксплуатации в суровых климатических условиях.
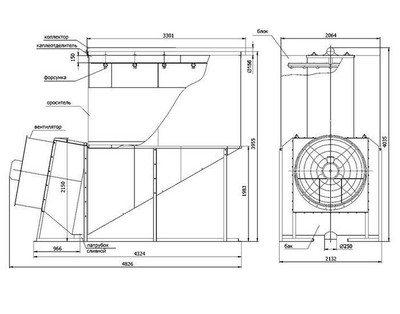
Комплектация вентиляторных градирен СВГ
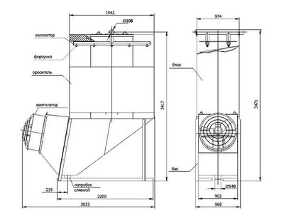
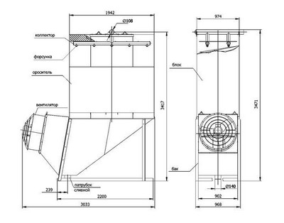
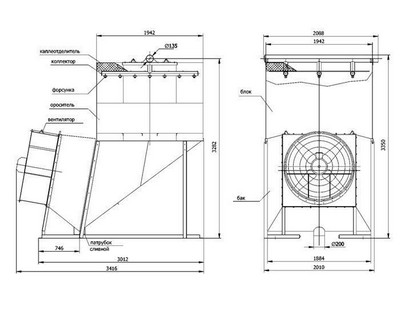
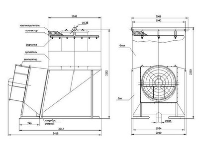
Устройство вентиляторных градирен включает в себя рабочие колеса и диффузоры из стеклопластика с улучшенными аэродинамическими свойствами, а так же асинхронные малошумные двигатели, применяемые в качестве привода вентиляторов. По просьбе заказчика возможна установка элементов предотвращающих появление наледи.
Конструкция градирни отличается долговечностью, которая достигается за счет применения антикоррозийных материалов и оцинкованного каркаса. Форсунки водораспределительной системы выполнен из нержавеющей стали и стойки к возникновению засоров, что значительно увеличивает срок их службы. Градирни СВГ оборудованы оросителями и каплеуловителями из современных негорючих материалов.
Одной из особенностей данной серии градирен является их быстрый и легкий монтаж на месте дальнейшей эксплуатации.
Вентиляторные градирни: особенности конструкции
Конструкция градирни выполнена из прочных стальных профилей. Соединение профилей осуществляется при помощи стальных болтов устанавливаемых в стыковочных местах. Все металлические элементы конструкции, включая места болтовых соединений, проходит поверхностную обработку при помощи горячего оцинкования.
В градирне примнется вентилятор, разработанный специально для применения в вентиляторных градирнях. Тихоходный электродвигатель вентилятора, приводящий в движение лопасти, оснащен регуляторами скорости вращения и включения обратного хода, что ощутимо увеличивает экономию электроэнергии и срок службы устройства. Количество лопастей в вентиляторе может варьироваться от требуемых характеристик устройства.
КОМПАКТНЫЕ ВЕНТИЛЯТОРНЫЕ ГРАДИРНИ СВГ-К
Вентиляторные миниградирни серии СВГ-К открытого типа широко применяются в системах охлаждения промышленных и гражданских объектов. Обладая достаточно низким энергопотребления, градирни серии СВГ-К, обеспечивают эффективное охлаждение оборотной воды до температуры значительно ниже, чем температура окружающей среды.
Миниградирни используются для кондиционирования воздуха в гражданских строениях, при охлаждении охлаждения конденсаторов холодильных установок и в некоторых случаях для охлаждения аварийных электрогенераторов высокой мощности.
В сфере промышленности градирни активно применяются при самых разных технологических операциях, где необходим эффективный и экономичный отвод тепла, образованного во время работы компрессорных установок, холодильных машин и станций, металлургических производств, машин по формовке пластических масс, технологических процессов по химической очистке веществ, восстановления чистых химических растворителей и т. п.
|
МОДИФИКАЦИЯ |
ТЕПЛОВОЙ |
РАЗМЕРЫ |
МАССА |
ЭЛЕКТРОДВИГАТЕЛЬ |
|
|
N |
n |
||||
|
http://gradirniprof.ru/swg-k-8 |
46 |
2000 x 1528 x 724 |
125 |
0.37 |
1500 |
|
http://gradirniprof.ru/swg-k-12m |
70 |
2600 x 1839 x 1008 |
231 |
0.75 |
1000 |
|
http://gradirniprof.ru/swg-k-16 |
95 |
2600 x 1839 x 1008 |
231 |
1.1 |
1500 |
|
http://gradirniprof.ru/swg-k-20m |
120 |
3100 x 1839 x 1008 |
288 |
0.75 |
1000 |
|
http://gradirniprof.ru/swg-k-24 |
140 |
3100 x 1839 x 1008 |
288 |
1.1 |
1500 |
|
http://gradirniprof.ru/swg-k-28 |
160 |
3100 x 1839 x 1008 |
288 |
1.1 |
1500 |
|
http://gradirniprof.ru/swg-k-32 |
190 |
2971 x 3033 x 968 |
435 |
3.0 |
1500 |
|
http://gradirniprof.ru/swg-k-50 |
300 |
3471 x 3033 x 968 |
520 |
3.0 |
1500 |
|
http://gradirniprof.ru/swg-k-60m |
350 |
3350 x 3416 x 2010 |
844 |
4.0 |
750 |
|
http://gradirniprof.ru/swg-k-75 |
450 |
3350 x 3416 x 2010 |
844 |
7.5 |
1000 |
|
http://gradirniprof.ru/swg-k-90m |
550 |
3850 x 3404 x 2010 |
990 |
4.0 |
750 |
|
http://gradirniprof.ru/swg-k-120 |
700 |
3850 x 3404 x 2010 |
990 |
7.5 |
1000 |
|
http://gradirniprof.ru/swg-k-170 |
1000 |
4035 x 4826 x 2132 |
1650 |
11.0 |
1000 |
|
http://gradirniprof.ru/swg-k-280 |
1650 |
4310 x 6774 x 2132 |
2100 |
15.0 |
1000 |
|
http://gradirniprof.ru/swg-k-400 |
2325 |
4730 x 7498 x 2350 |
3240 |
22.0 |
750 |
|
* - Цифра указывает номинальный расход охлаждаемой воды в м3/час. |
|||||
|
** - При номинальном расходе охлаждаемой воды и Δtw=5оС; при 50% номинального расхода и Δtw=10оС. |
|||||
|
М - Обозначение малошумной модификации градирни с пониженным числом оборотов вентилятора. |
|||||
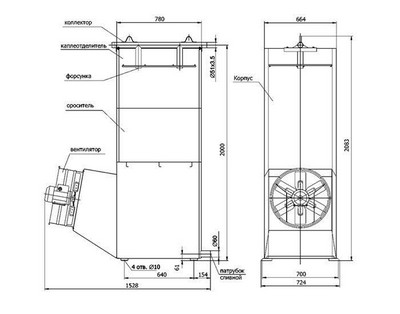
СВГ-К-8

|
ТЕХНИЧЕСКИЕ ХАРАКТЕРИСТИКИ ГРАДИРНИ СВГ-К-8 |
||
|
Количество охлаждаемой воды |
8 |
м3/час |
|
Площадь поверхности оросителя |
65 |
м2 |
|
Расчетный тепловой поток при разности температур по воде Δt=5оС |
46 |
кВт |
|
Диапазон регулирования производительности |
50-100 |
% |
|
Площадь орошения |
0,5 |
м2 |
|
Количество форсунок |
2 |
шт. |
|
Количество вентиляторов |
1 |
шт. |
|
Тип вентилятора |
06-300 |
|
|
Диаметр рабочего колеса |
500 |
мм |
|
Частота вращения колеса вентилятора |
1500 |
об/мин |
|
Установленная мощность электродвигателя |
0,37 |
кВт |
|
Уровень звука на расстоянии 1 м |
78 |
дБл |
|
Напряжение/частота сети |
380/50 |
В/Гц |
|
Масса |
125 |
кг |
СВГ-К-12М

|
ТЕХНИЧЕСКИЕ ХАРАКТЕРИСТИКИ ГРАДИРНИ СВГ-К-12М |
||
|
Количество охлаждаемой воды |
12 |
м3/час |
|
Площадь поверхности оросителя |
88 |
м2 |
|
Расчетный тепловой поток при разности температур по воде Δt=5оС |
70 |
кВт |
|
Диапазон регулирования производительности |
45-100 |
% |
|
Площадь орошения |
0,95 |
м2 |
|
Количество форсунок |
2 |
шт. |
|
Количество вентиляторов |
1 |
шт. |
|
Тип вентилятора |
06-300 |
|
|
Диаметр рабочего колеса |
630 |
мм |
|
Частота вращения колеса вентилятора |
1000 |
об/мин |
|
Установленная мощность электродвигателя |
0,75 |
кВт |
|
Уровень звука на расстоянии 1 м |
72 |
дБл |
|
Напряжение/частота сети |
380/50 |
В/Гц |
|
Масса |
231 |
кг |
СВГ-К-16

|
Площадь поверхности оросителя |
88 |
м2 |
|
Расчетный тепловой поток при разности температур по воде Δt=5оС |
95 |
кВт |
|
Диапазон регулирования производительности |
40-100 |
% |
|
Площадь орошения |
0,95 |
м2 |
|
Количество форсунок |
3 |
шт. |
|
Количество вентиляторов |
1 |
шт. |
|
Тип вентилятора |
06-300 |
|
|
Диаметр рабочего колеса |
630 |
мм |
|
Частота вращения колеса вентилятора |
1500 |
об/мин |
|
Установленная мощность электродвигателя |
1,1 |
кВт |
|
Уровень звука на расстоянии 1 м |
86 |
дБл |
|
Напряжение/частота сети |
380/50 |
В/Гц |
|
Масса |
231 |
кг |
СВГ-К-20М

|
ТЕХНИЧЕСКИЕ ХАРАКТЕРИСТИКИ ГРАДИРНИ СВГ-К-20М |
||
|
Количество охлаждаемой воды |
20 |
м3/час |
|
Площадь поверхности оросителя |
175 |
м2 |
|
Расчетный тепловой поток при разности температур по воде Δt=5оС |
120 |
кВт |
|
Диапазон регулирования производительности |
45-100 |
% |
|
Площадь орошения |
0,95 |
м2 |
|
Количество форсунок |
4 |
шт. |
|
Количество вентиляторов |
1 |
шт. |
|
Тип вентилятора |
06-300 |
|
|
Диаметр рабочего колеса |
630 |
мм |
|
Частота вращения колеса вентилятора |
1000 |
об/мин |
|
Установленная мощность электродвигателя |
0,75 |
кВт |
|
Уровень звука на расстоянии 1 м |
72 |
дБл |
|
Напряжение/частота сети |
380/50 |
В/Гц |
|
Масса |
288 |
кг |
СВГ-К-24

|
Количество охлаждаемой воды |
24 |
м3/час |
|
Площадь поверхности оросителя |
130 |
м2 |
|
Расчетный тепловой поток при разности температур по воде Δt=5оС |
140 |
кВт |
|
Диапазон регулирования производительности |
40-100 |
% |
|
Площадь орошения |
0,95 |
м2 |
|
Количество форсунок |
4 |
шт. |
|
Количество вентиляторов |
1 |
шт. |
|
Тип вентилятора |
06-300 |
|
|
Диаметр рабочего колеса |
630 |
мм |
|
Частота вращения колеса вентилятора |
1500 |
об/мин |
|
Установленная мощность электродвигателя |
1,1 |
кВт |
|
Уровень звука на расстоянии 1 м |
86 |
дБл |
|
Напряжение/частота сети |
380/50 |
В/Гц |
|
Масса |
288 |
кг |
СВГ-К-28

|
ТЕХНИЧЕСКИЕ ХАРАКТЕРИСТИКИ ГРАДИРНИ СВГ-К-28 |
||
|
Количество охлаждаемой воды |
28 |
м3/час |
|
Площадь поверхности оросителя |
175 |
м2 |
|
Расчетный тепловой поток при разности температур по воде Δt=5оС |
160 |
кВт |
|
Диапазон регулирования производительности |
35-100 |
% |
|
Площадь орошения |
0,95 |
м2 |
|
Количество форсунок |
4 |
шт. |
|
Количество вентиляторов |
1 |
шт. |
|
Тип вентилятора |
06-300 |
|
|
Диаметр рабочего колеса |
630 |
мм |
|
Частота вращения колеса вентилятора |
1500 |
об/мин |
|
Установленная мощность электродвигателя |
1,1 |
кВт |
|
Уровень звука на расстоянии 1 м |
86 |
дБл |
|
Напряжение/частота сети |
380/50 |
В/Гц |
|
Масса |
288 |
кг |
СВГ-К-32

|
ТЕХНИЧЕСКИЕ ХАРАКТЕРИСТИКИ ГРАДИРНИ СВГ-К-32 |
||
|
Количество охлаждаемой воды |
32 |
м3/час |
|
Площадь поверхности оросителя |
175 |
м2 |
|
Расчетный тепловой поток при разности температур по воде Δt=5оС |
190 |
кВт |
|
Диапазон регулирования производительности |
45-100 |
% |
|
Площадь орошения |
1,89 |
м2 |
|
Количество форсунок |
6 |
шт. |
|
Количество вентиляторов |
1 |
шт. |
|
Тип вентилятора |
06-300 |
|
|
Диаметр рабочего колеса |
800 |
мм |
|
Частота вращения колеса вентилятора |
1500 |
об/мин |
|
Установленная мощность электродвигателя |
3,0 |
кВт |
|
Уровень звука на расстоянии 1 м |
93 |
дБл |
|
Напряжение/частота сети |
380/50 |
В/Гц |
|
Масса |
435 |
кг |
СВГ-К-50

|
ТЕХНИЧЕСКИЕ ХАРАКТЕРИСТИКИ ГРАДИРНИ СВГ-К-50 |
||
|
Количество охлаждаемой воды |
50 |
м3/час |
|
Площадь поверхности оросителя |
350 |
м2 |
|
Расчетный тепловой поток при разности температур по воде Δt=5оС |
300 |
кВт |
|
Диапазон регулирования производительности |
50-100 |
% |
|
Площадь орошения |
1,89 |
м2 |
|
Количество форсунок |
10 |
шт. |
|
Количество вентиляторов |
1 |
шт. |
|
Тип вентилятора |
06-300 |
|
|
Диаметр рабочего колеса |
800 |
мм |
|
Частота вращения колеса вентилятора |
1500 |
об/мин |
|
Установленная мощность электродвигателя |
3,0 |
кВт |
|
Уровень звука на расстоянии 1 м |
97 |
дБл |
|
Напряжение/частота сети |
380/50 |
В/Гц |
|
Масса |
520 |
кг |
СВГ-К-60М

|
ТЕХНИЧЕСКИЕ ХАРАКТЕРИСТИКИ ГРАДИРНИ СВГ-К-60М |
||
|
Количество охлаждаемой воды |
60 |
м3/час |
|
Площадь поверхности оросителя |
378 |
м2 |
|
Расчетный тепловой поток при разности температур по воде Δt=5оС |
350 |
кВт |
|
Диапазон регулирования производительности |
50-100 |
% |
|
Площадь орошения |
3,77 |
м2 |
|
Количество форсунок |
12 |
шт. |
|
Количество вентиляторов |
1 |
шт. |
|
Тип вентилятора |
06-300 |
|
|
Диаметр рабочего колеса |
1250 |
мм |
|
Частота вращения колеса вентилятора |
750 |
об/мин |
|
Установленная мощность электродвигателя |
4,0 |
кВт |
|
Уровень звука на расстоянии 1 м |
92 |
дБл |
|
Напряжение/частота сети |
380/50 |
В/Гц |
|
Масса |
844 |
кг |
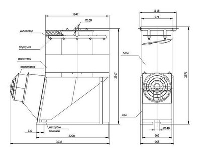
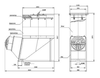
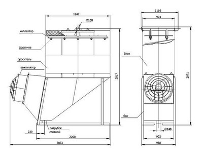
СВГ-К-75

|
ТЕХНИЧЕСКИЕ ХАРАКТЕРИСТИКИ ГРАДИРНИ СВГ-К-75 |
||
|
Количество охлаждаемой воды |
75 |
м3/час |
|
Площадь поверхности оросителя |
378 |
м2 |
|
Расчетный тепловой поток при разности температур по воде Δt=5оС |
450 |
кВт |
|
Диапазон регулирования производительности |
40-100 |
% |
|
Площадь орошения |
3,77 |
м2 |
|
Количество форсунок |
12 |
шт. |
|
Количество вентиляторов |
1 |
шт. |
|
Тип вентилятора |
06-300 |
|
|
Диаметр рабочего колеса |
1250 |
мм |
|
Частота вращения колеса вентилятора |
1000 |
об/мин |
|
Установленная мощность электродвигателя |
7,5 |
кВт |
|
Уровень звука на расстоянии 1 м |
105 |
дБл |
|
Напряжение/частота сети |
380/50 |
В/Гц |
|
Масса |
844 |
кг |
СВГ-К-90М

|
ТЕХНИЧЕСКИЕ ХАРАКТЕРИСТИКИ ГРАДИРНИ СВГ-К-90М |
||
|
Количество охлаждаемой воды |
90 |
м3/час |
|
Площадь поверхности оросителя |
756 |
м2 |
|
Расчетный тепловой поток при разности температур по воде Δt=5оС |
550 |
кВт |
|
Диапазон регулирования производительности |
55-100 |
% |
|
Площадь орошения |
3,77 |
м2 |
|
Количество форсунок |
21 |
шт. |
|
Количество вентиляторов |
1 |
шт. |
|
Тип вентилятора |
06-300 |
|
|
Диаметр рабочего колеса |
1250 |
мм |
|
Частота вращения колеса вентилятора |
750 |
об/мин |
|
Установленная мощность электродвигателя |
4,0 |
кВт |
|
Уровень звука на расстоянии 1 м |
92 |
дБл |
|
Напряжение/частота сети |
380/50 |
В/Гц |
|
Масса |
990 |
кг |
СВГ-К-120

|
ТЕХНИЧЕСКИЕ ХАРАКТЕРИСТИКИ ГРАДИРНИ СВГ-К-120 |
||
|
Количество охлаждаемой воды |
120 |
м3/час |
|
Площадь поверхности оросителя |
756 |
м2 |
|
Расчетный тепловой поток при разности температур по воде Δt=5оС |
700 |
кВт |
|
Диапазон регулирования производительности |
40-100 |
% |
|
Площадь орошения |
3,77 |
м2 |
|
Количество форсунок |
21 |
шт. |
|
Количество вентиляторов |
1 |
шт. |
|
Тип вентилятора |
06-300 |
|
|
Диаметр рабочего колеса |
1250 |
мм |
|
Частота вращения колеса вентилятора |
1000 |
об/мин |
|
Установленная мощность электродвигателя |
7,5 |
кВт |
|
Уровень звука на расстоянии 1 м |
102 |
дБл |
|
Напряжение/частота сети |
380/50 |
В/Гц |
|
Масса |
990 |
кг |
СВГ-К-170

|
ТЕХНИЧЕСКИЕ ХАРАКТЕРИСТИКИ ГРАДИРНИ СВГ-К-170 |
||
|
Количество охлаждаемой воды |
170 |
м3/час |
|
Площадь поверхности оросителя |
985 |
м2 |
|
Расчетный тепловой поток при разности температур по воде Δt=5оС |
1000 |
кВт |
|
Диапазон регулирования производительности |
50-100 |
% |
|
Площадь орошения |
6,5 |
м2 |
|
Количество форсунок |
35 |
шт. |
|
Количество вентиляторов |
1 |
шт. |
|
Тип вентилятора |
12-284 |
|
|
Диаметр рабочего колеса |
1400 |
мм |
|
Частота вращения колеса вентилятора |
1000 |
об/мин |
|
Установленная мощность электродвигателя |
11,0 |
кВт |
|
Уровень звука на расстоянии 1 м |
96 |
дБл |
|
Напряжение/частота сети |
380/50 |
В/Гц |
|
Масса |
1750 |
кг |
СВГ-К-280

|
ТЕХНИЧЕСКИЕ ХАРАКТЕРИСТИКИ ГРАДИРНИ СВГ-К-280 |
||
|
Количество охлаждаемой воды |
280 |
м3/час |
|
Площадь поверхности оросителя |
1869 |
м2 |
|
Расчетный тепловой поток при разности температур по воде Δt=5оС |
1620 |
кВт |
|
Диапазон регулирования производительности |
40-100 |
% |
|
Площадь орошения |
10 |
м2 |
|
Количество форсунок |
48 |
шт. |
|
Количество вентиляторов |
1 |
шт. |
|
Тип вентилятора |
13-284 |
|
|
Диаметр рабочего колеса |
1600 |
мм |
|
Частота вращения колеса вентилятора |
1000 |
об/мин |
|
Установленная мощность электродвигателя |
15,0 |
кВт |
|
Уровень звука на расстоянии 1 м |
110 |
дБл |
|
Напряжение/частота сети |
380/50 |
В/Гц |
|
Масса |
2230 |
кг |
СВГ-К-400

|
ТЕХНИЧЕСКИЕ ХАРАКТЕРИСТИКИ ГРАДИРНИ СВГ-К-400 |
||
|
Количество охлаждаемой воды |
400 |
м3/час |
|
Площадь поверхности оросителя |
м2 |
|
|
Расчетный тепловой поток при разности температур по воде Δt=5оС |
2325 |
кВт |
|
Диапазон регулирования производительности |
50-100 |
% |
|
Площадь орошения |
м2 |
|
|
Количество форсунок |
шт. |
|
|
Количество вентиляторов |
шт. |
|
|
Тип вентилятора |
||
|
Диаметр рабочего колеса |
2000 |
мм |
|
Частота вращения колеса вентилятора |
750 |
об/мин |
|
Установленная мощность электродвигателя |
22,0 |
кВт |
|
Уровень звука на расстоянии 1 м |
дБл |
|
|
Напряжение/частота сети |
380/50 |
В/Гц |
|
Масса |
3240 |
кг |
ТЕХНОЛОГИЧЕСКОЕ ОБОРУДОВАНИЕ ДЛЯ ГРАДИРЕН
ОРОСИТЕЛИ
Оросительные устройства из гофрированных листов ПВХ:
|
в разобранном виде в 1 м3 транспортного объема помещается 28,5 м2 оросительного устройства ОДГ 60/40 (высота 0,7 м), т.е. для перевозки 1000 м3 оросителя необходимо 47,5 м3 транспортного объема |
|
собираются в блоки и монтируются непосредственно на объекте без использования специальных приспособлений (стяжки и заглушки для сборки в блоки входят в комплект поставки, скорость сборки 70-100 блоков в смену одним рабочим) |
|
плёнка ПВХ прошла всесторонние исследования по параметрам воспламеняемости и горючести, по результатам которых получено от Управления Государственной противопожарной службы согласование на использование в градирнях |
|
полностью удовлетворяют экологическим требованиям, безвреден для здоровья человека, имеется гигиенический сертификат. |
|
рецептура пленки ПВХ отработана с учетом требований морозостойкости, испытана до температур -50 оС |
|
изделия из плёнки жесткого ПВХ отличаются повышенной стойкостью к истиранию и внешнему механическому воздействию |
|
плёнка ПВХ имеет превосходную химическую стойкость к большинству оксидов, щелочей, алифатических углеводородов и солей, не растворяется в бензине и керосине, стойкая к действию кислот |
|
плёнка из жёсткого ПВХ не подвержена разрушению различного рода микроорганизмами |
|
специальные добавки, используемые при изготовлении плёнки ПВХ, позволяют противостоять разрушительному воздействию ультрафиолетового излучения |
ОДГ-60/40 (ТУ 2291-002-31098323-2001)

ОДГ-45/30 (ТУ 2291-002-31098323-2001)

ОДГ-60/25/0.5 (ТУ 2291-002-31098323-2001)

ВСС-55 (ТУ 2291-005-31098323-2005)

· длина блока - 630 мм;
· ширина блока - 650 мм;
· высота блока - 55 мм.
ВОДОУЛОВИТЕЛЬ
ТУ 2291-006-31098323-2006

Рекомендуется для применения в вентиляторных и башенных градирнях
ТУ 2291-006-31098323-2006

Рекомендуется для применения в вентиляторных и башенных градирнях
Водоуловитель уголковый

Данный каплеуловитель рекомендуется для применения в эжекционных и брызгальных градирнях
ФОРСУНКИ, СОПЛА
Сопло тангенциальное 20х12; 32х16; 32х22 (типовое)

|
Диаметр вых. сечения, мм |
Присоед. резьба, мм |
Рабочий напор [h], м.вод.ст. |
Расходная характеристика, м3/ч |
Макс. габариты, мм |
Материал |
|
12 |
G 3/4 |
2-15 |
Q=0,9[h]0,5 |
- |
пластм. |
Сопло с чашечным отражателем СР-2М

|
Диаметр вых. сечения, мм |
Присоед. резьба, мм |
Рабочий напор [h], м.вод.ст. |
Расходная характеристика, м3/ч |
Макс. габариты, мм |
Материал |
|
24 |
M33x3 |
1,5-4 |
Q=5,80[h]0,5 |
136x135 |
пластм. |
Форсунка эжекционная

|
Диаметр вых. сечения, мм |
Присоед. резьба, мм |
Рабочий напор [h], м.вод.ст. |
Расходная характеристика, м3/ч |
Макс. габариты, мм |
Материал |
|
10 |
G 1 |
25-50 |
Q=1,00[h]0,5 |
40x40 |
латунь, бронза |
Форсунка ФГ-2М

|
Тип форсунки |
Диаметр вых. сечения, мм |
Присоед. резьба, мм |
Рабочий напор [h], м.вод.ст. |
Расходная характеристика, м3/ч |
Макс. габариты, мм |
Материал |
|
Форсунка ФГ-2М/2 2-каскадная |
24 |
G 1 |
3-20 |
Q=6,28[h]0,5 |
125х58 |
нерж. сталь |
|
Форсунка ФГ-2М/4 4-каскадная |
28 |
G 1 |
3-20 |
Q=8,53[h]0,5 |
200x58 |
|
|
Форсунка ФГ-2М/5 5-каскадная |
35 |
G 11/4 |
3-20 |
Q=13,3[h]0,5 |
250x68 |
ВЕНТИЛЯТОРЫ

Вентиляторы, используемые в градирнях ЭКОТЭП, отличаются высокой производительностью и надежностью. Структура вентилятора включает в себя рабочее колесо, электродвигатель и диффузор. Лопасти и диффузор, как правило, производятся из стеклопластика. За счет использования ламинированной стеклоткани, в сочетании с возможностью изменения угла наклона лопастей, достигается повышенная производительность вентилятора.